
论述
dfb50/6.4矿用隔爆型电动球阀主要适用于煤矿井下具有瓦斯、煤尘爆炸危险及水质差、水压范围广的自动化防尘、防灭火自动控制喷雾,作水路自动控制开关。该电动球阀可单独使用也可与其他监控系统关联配套使用。电动球阀是一种由球体旋转而开闭水路的新型电动阀门,其适应的供水压力范围广,不受泥沙、污水影响,供水通径大,工作过程中通电时间短、工作稳定可靠,是一种用途广、使用寿命长、输水能力高、抗干扰能力强的理想的水控制阀门。
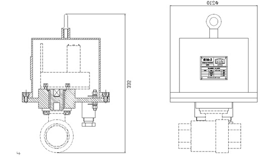
電動闸阀为 矿用绞车隔爆型“ ex db i mb ”
特殊电阻:dc 24v;特殊电率:≤40w;
球阀管径:dn40,dn50可选;
面积: φ210mm×335mm(半径×高);
重: 约16kg。

本直流变压器智能蝶阀为直流变压器24v送电,交流电大于2a。操作为无源接点操作,接点接入后,直流变压器智能蝶阀半自功打開,打開足后做到开的模式;接点中断后,直流变压器智能蝶阀半自功关掉系统,关掉系统足后半自功关闭程序。

kjj660(b)矿用防防爆设备万兆快开馆架构交易机
kjj127(a)矿井隔爆兼本安型万兆环网对换机
矿山防爆设备互相核心交换机kjj660(a)
kxj1140/660-b矿用防防燃可和程序编写调整箱